Architecture as scaffold for community.

It Takes a Courtyard

 

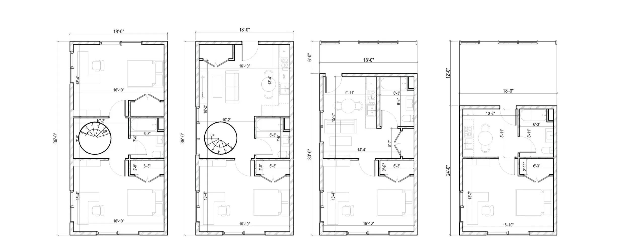
It Takes a Courtyard reclaims the courtyard as both spatial and social infrastructure for building resilient urban communities. Located along a highway edge, the site hosts a modular housing system composed of three unit types—each calibrated to diverse household needs from multigenerational families to young professionals. Prefabricated modules stack into a zigzag form, defining courtyards that support recreation, gathering, and micro-scale collectivity. Private units are buffered from noise by a dual-layer façade, while shared lounges and roof gardens cultivate a sense of belonging. Rather than maximizing yield, the design prioritizes long-term livability through flexibility, density gradients, and intentional overlaps between private and shared space

Location: Elyria-Swansea, Denver, CO
Team: Ruxuan Zheng, Aixuan Li

Strategy

From Boundary to Framework

Folding for Courtyards

Stacking Prefab Units

Growing a Neighborhood

Typology

Overview

Sited along the I-70 corridor, where infrastructure once divided Park Hill and Elyria-Swansea, the project reclaims the highway edge as a new framework for collective life. Instead of a single monolithic block, the housing grows as a series of prefabricated units, stacked and shifted to form courtyards, gardens, and elevated terraces.

Each unit acts as a building block of belonging — small, repeatable, but collectively transformative.

These courtyards and public fields — playgrounds, gardens, and ground-floor classrooms— stitch together the fractured fabric, turning leftover land into shared neighborhood ground. The prefabricated system allows phased construction, local assembly, and adaptability over time, aligning with Denver’s push for equitable, resilient, and rapid affordable housing.

This is a housing system that grows like a landscape: modular in form, communal in spirit, and deeply rooted in the Denver light, climate, and community.

Facade Detail

Facing the shared courtyard, each unit opens to an individual entry along a continuous corridor. Wrapped in the same aluminum cladding, the façade maintains visual coherence while defining a soft transition between collective and private spaces.

The outer façade uses a dual-layer system of EIFS wall and aluminum cladding to ensure insulation and sound protection. It buffers highway noise, stabilizes indoor temperature, and presents a calm, unified urban frontage along the main street.

Previous
Previous

City on the Loop

Next
Next

Block Within